В отличие от подъёмников мод. П-263 данный подъёмник может быть изготовлен для эксплуатации в узких канавах шириной от 700 мм. Многоуровневая система безопасности. Регулируемые упоры, позволяющие поднимать автомобили с различной конфигурацией рамы, возможность подъёма легковых автомобилей за поддомкратные площадки с расстоянием между ними (по ширине) до 1600 мм.
Перемещение подъемника вручную по рельсам, проложенным по дну канавы. Усилие перемещения не превышает 15 кг. Надежное самоторможение от перемещения под нагрузкой. Для работы подъёмника необходимо подвести к насосу только сжатый воздух. В конструкции подъёмников применена гидравлика лучших Европейских производителей.
Внимание! Подъемник изготавливается только с пневмогидравлическим приводом.
УСТРОЙСТВО И ПРИНЦИП РАБОТЫ:
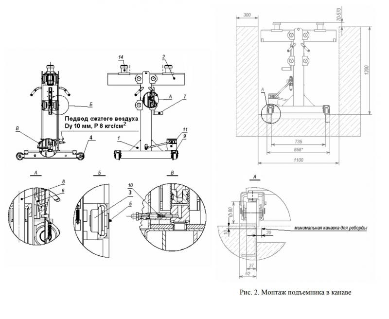
Подъемник ПРК-16 (см. Рис.) состоит из рамы 1, перемещающейся вдоль канавы на подпружиненных роликах 4. Внутри рамы по направляющим роликам 3 вертикально перемещается траверса 2. В осях роликов 3 предусмотрены масленки 5 для смазывания подшипниковых узлов. В верхней части траверсы имеются подвижные подхваты 14. На раме установлены собачки 6, предназначенные для фиксации траверсы в поднятом положении, и ручка 7 для их отжима при опускании траверсы. Подъем траверсы 2 осуществляется с помощью гидроцилиндра 8. В корпусе гидроцилиндра, в канале подвода рабочей жидкости в поршневую полость, установлен дросселирующий клапан 10, предназначенный для ограничения скорости опускания траверсы при разгерметизации (разрыве) линии подачи рабочей жидкости в поршневую полость гидроцилиндра. Подача рабочей жидкости в гидроцилиндр осуществляется с помощью пневмогидравлического насоса 11.
Для обеспечения безопасности работы подъемник имеет механизм фиксации траверсы в поднятом положении. Фиксация производится двумя подпружиненными защелками 6 фиксирующими траверсу относительно рамы. Для расфиксации траверсы при опускании, защелки выводятся из зацепления с помощью рукоятки 7. Неподвижность подъемника при работе обеспечивается за счёт деформации пружин 9, расположенных между рычагами роликов 4 и основанием рамы 1 и удерживающих подъемник на роликах при отсутствии нагрузки на подъемник. Опускание траверсы осуществляется под собственным весом при расфиксации траверсы и при нажатии на педаль пневмогидравлического насоса.
| ТХ (таблица) (Описание) : | Грузоподъемность, кг 16 000 Наибольший ход рабочего механизма, мм 530 Минимальная высота подъема упоров над уровнем пола, мм 70 Расстояние между подхватывающими элементами (по центру), мм 150 - 875 Габариты канавы (ширина), мм 700-1100 Габариты подъемника (Д×Ш×В), мм 910×1020-1710×1270 Габариты в упаковке (Д×Ш×В), мм 1135×1029×1370 Масса нетто, кг 300 Масса брутто, кг 380 |