NORTORG

ПРК-10 Подъемник канавный, г/п 10 т

Доступность:
В наличии
191 669
Оплата и получение
Гарантия
г/п 10 тонн. Универсальный. Рельсовый. Пневмопривод. Для канавы шириной 700-1100 мм и подъёма легковых и грузовых автомобилей. Многоуровневая система безопасности. Регулируемые упоры, позволяющие поднимать автомобили с различной конфигурацией рамы.

Простота конструкции подъёмника требует минимум обслуживания. В отличие от подъёмников мод. П-263 данный подъёмник может быть изготовлен для эксплуатации в узких канавах шириной от 700 мм.

Многоуровневая система безопасности. Регулируемые упоры, позволяющие поднимать автомобили с различной конфигурацией рамы, возможность подъёма легковых автомобилей за поддомкратные площадки с расстоянием между ними (по ширине) до 1600 мм.

Перемещение подъемника вручную по рельсам, проложенным по дну канавы. Усилие перемещения не превышает 15 кг. Надежное самоторможение от перемещения под нагрузкой. Для работы подъёмника необходимо подвести к насосу только сжатый воздух. В конструкции подъёмников применена гидравлика лучших Европейских производителей.

Внимание! Подъемник изготавливается только с пневмогидравлическим приводом.


УСТРОЙСТВО И ПРИНЦИП РАБОТЫ:

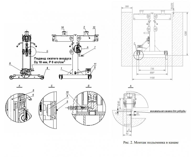
Подъемник ПРК-10 (см. Рис.) состоит из рамы 1, перемещающейся вдоль канавы на подпружиненных роликах 4. Внутри рамы по направляющим роликам 3 вертикально перемещается траверса 2. В осях роликов 3 предусмотрены масленки 5 для смазывания подшипниковых узлов. В верхней части траверсы имеются подвижные подхваты 14. В траверсе имеются дополнительные выдвижные балки 12 с опорами. На раме установлены собачки 6, предназначенные для фиксации траверсы в поднятом положении, и ручка 7 для их отжима при опускании траверсы. Подъем траверсы 2 осуществляется с помощью гидроцилиндра 8. В корпусе гидроцилиндра, в канале подвода рабочей жидкости в поршневую полость, установлен дросселирующий клапан 10, предназначенный для ограничения скорости опускания траверсы при разгерметизации (разрыве) линии подачи рабочей жидкости в поршневую полость гидроцилиндра. Подача рабочей жидкости в гидроцилиндр осуществляется с помощью пневмогидравлического насоса 11. 

Для обеспечения безопасности работы подъемник имеет механизм фиксации траверсы в поднятом положении. Фиксация производится двумя подпружиненными защелками 6 фиксирующими траверсу относительно рамы. Для расфиксации траверсы при опускании, защелки выводятся из зацепления с помощью рукоятки 7. Неподвижность подъемника при работе обеспечивается за счёт деформации пружин 9, расположенных между рычагами роликов 4 и основанием рамы 1 и удерживающих подъемник на роликах при отсутствии нагрузки на подъемник. Опускание траверсы осуществляется под собственным весом при расфиксации траверсы и при нажатии на педаль пневмогидравлического насоса.

ТХ (таблица) (Описание) : Грузоподъемность, кг 10 000 Наибольший ход рабочего механизма, мм 500 Минимальная высота подъема упоров над уровнем пола, мм 70 Расстояние между подхватывающими элементами (по центру), мм 150 - 875 Габариты канавы (ширина), мм 700-1100 Габариты подъемника (Д×Ш×В), мм 910×1020-1710×1270 Габариты в упаковке (Д×Ш×В), мм 1135×1029×1370 Масса нетто, кг 250 Масса брутто, кг 320

ЗАКАЗ И ОПЛАТА

Свяжитесь с отделом продаж по телефону 8 (8152) 600-017, через WhatsApp , Telegram или оставьте заявку на почту info@nortorg.ru, наши менеджеры дадут исчерпывающую консультацию. После оплаты нужного товара можно забрать оборудование со склада или заказать доставку. 

Заранее ознакомьтесь с подробным описанием товара в каталоге сайта.  Если в наличии не окажется нужного товара, мы проверим все наши склады и предложим Вам максимально подходящий по характеристикам товар. 

ДОСТАВКА

- Самовывоз со склада или отправка через ТК
- Отправляем оборудование всеми известными транспортными компаниями
- БЕСПЛАТНО доставляем товар до терминалов ПЭК и Деловых Линий
- Доставка осуществяется во все регионы РФ, а также в Республику Беларусь и Казахстан
- Мы контролируем все этапы доставки 

- Производим обязательное страхование груза

УДОБСТВА ДЛЯ ВАС

Поставляем оборудование организациям, ИП и частным лицамам. 

Принимаем наличный и безналичный расчет

Работаем с НДС

Продаем в ЛИЗИНГ

Оперативный документооборот по ЭДО

ГАРАНТИЯ

Норторг берет на себя все гарантийные обязательства согласно действующему законодательству РФ и требованиям заводов изготовителей. В некоторых случаях компания оказывает дополнительную поддержку предоставляя клиентам расширенную гарантию - о чем заранее оповещает клиента. Сроки расширенной гарантии могут быть разными, в зависимости от товара.


В случае рекламационной ситуации клиент обращается в службу сервиса компании и фиксирует неисправность. Неисправное оборудование вводится в эксплуатационное состояние на месте, либо направляется к производителю. Сроки замены или ремонта рекламационного изделия при этом регулируются договором поставки (соглашением).

Данные о товарах, представленных на сайте,
не являются публичной офертой.
Подробности о технических характеристиках и составе товаров уточняйте у наших менеджеров,
осуществляющих поддержку по контактам, указанным на странице Контакты.