УСТРОЙСТВО И ПРИНЦИП РАБОТЫ ПОДЪЕМНИКА ПС-24:
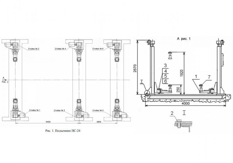
Подъемник состоит из шести стоек № 1, 2, 3, 4, 5, 6 (см. Рис.) и балок поворотных 1. Стойки № 1, 2, 3, 4, 5, 6 подъемника крепятся болтами 2 (см. выноску I на Рис.2) к раме, состоящей из трех оснований. Рама забетонирована в пол. Для установки поворотных балок на каретках стоек предназначены оси 3 и осей держатели 4, а также болты и шайбы 5 и 6 для крепления осей держателей. В состав подъемника входит комплект сменных частей 7 с подхватами и основаниями для подхватов, используемых при подъеме автобусов-сцепок. Стойка состоит из вертикальной колонны, привода подъема и каретки. На стойке № 1 установлен шкаф аппаратный. На стойках № 2, 3, 4, 5 и 6 посты управления. Колонна представляет собой сварную конструкцию. Привод подъема состоит из электродвигателя, червячного редуктора, соединительных муфт и винта. При вращении винта по нему перемещаются рабочая и страхующая гайки. На рабочую гайку через сферическую шайбу опирается каретка. На каретке закреплен упор (лыжа) для отключения перемещения каретки в крайних верхнем и нижнем положениях, воздействуя на конечные выклюючатели, закрепленные на колонне.
Принцип работы.
Подъем и опускание автобуса-сцепки производится с помощью подхватов, установленных на поворотных балках подъемника, подведенных под поддомкратные площадки автомобиля. Управление подъемником осуществляется со шкафа аппаратного, установленного на стойке № 1 и с постов управления, расположенных на стойках № 2, 3, 4, 5, 6.
| ТХ (таблица) (Описание) : | Стандарт Для эксплуатации на улице Максимальная грузоподъемность, т 24 24 Максимальная высота подъема подхватов от уровня пола, мм 1880 2100 Способ подъема автомобиля за поддомкратные площадки за поддомкратные площадки Минимальная высота подхватов от уровня пола, мм 250 320 Установленная мощность, кВт 13,2 13,2 Количество стоек, шт. 6 6 Количество электродвигателей, шт. 6 6 Время подъема на полную высоту, с 160 160 Габариты подъемника, мм 10800×4250×2965 10800х4250х2930 Упаковка: вид, кол-во мест, габариты, мм Ящик 3 3400х1100х850 Ящик 3 3400х1100х850 Масса нетто, кг 2800 2870 Масса брутто, кг 3300 3370 |