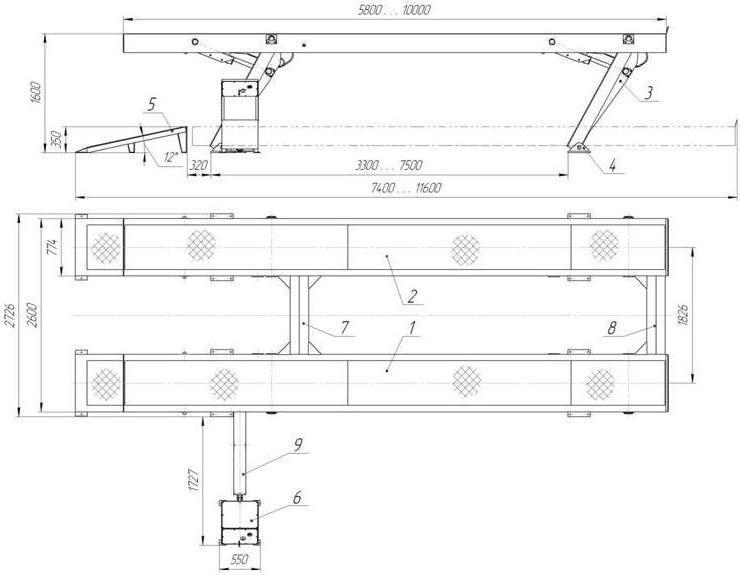
г/п. 24 тонн. Ножничный. Электрогидравлический. Длина платформ 7 300 м. Для подъема грузовых автомобилей, автобусов, специальной техники, строительных и сельскохозяйственных машин при выполнении работ по диагностике, техническому обслуживанию, ремонту, также на линиях инструментального контроля.
Габариты узлов подъёмника в упаковке позволяют перевозить его еврофурой или 40-футовым контейнером.
Универсальная платформа в форме параллелограмма предназначена для ремонта автомобилей с различной колесной базой и шириной колеи;
Гидравлический привод.
Отсутствие боковых стоек обеспечивает оптимальный доступ к автомобилю.
Безопасность обеспечивается с применением гидрозамков на каждом гидроцилиндре и дублируется механическими стопорными приспособлениями на правой и левой стороне платформы.
Подъемник обеспечивает оптимальную рабочую высоту в четырех рабочих положениях при выполнении многих видов работ;
подъемники поставляются в напольном варианте и в исполнении «ровный пол».
| ТХ (таблица) (Описание) : | Тип электрогидравлический, платформенный Грузоподъемность,кг 24000 Высота подъема,мм 1500 Время подьема,мин 2,5 Мощность,кВт 4 длина,мм 8900 ширина,мм 2600 высота,мм 500 Масса,кг 4500 |