NORTORG

ПЛ-20 Подъёмник платформенный, 4-х ст, г/п 20 т (стандарт)

Доступность:
В наличии
1 302 240
Оплата и получение
Гарантия
г/п. 20 тонн. Четырехстоечный. Электромеханический. Для ремонта грузовых автомобилей и автобусов на любой ровной площадке. Привод червячный редуктор, с концевыми выключателями нажимного действия, ограничивающими ход каретки. Рабочие гайки повышенной прочности и износостойкости. Многоуровневая система безопасности. По отдельному заказу комплектуется установочными рамами. Поставляется в 2 вариантах Стандарт (в помещение) и ТЗ (Для эксплуатации на улице).

 УСТРОЙСТВО И ПРИНЦИП РАБОТЫ 
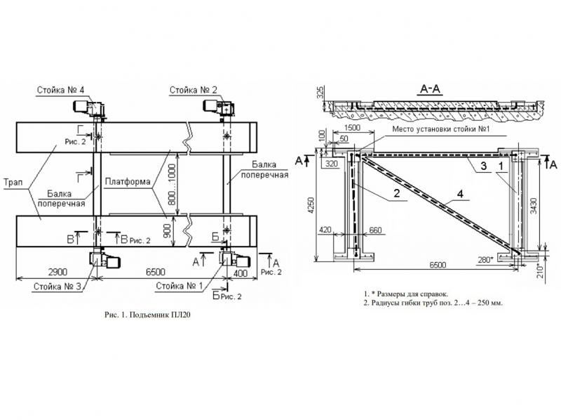
Подъемник состоит из четырех стоек 1, 2, 3, 4 (см. Рис.), каждая из которых имеет электромеханический привод, состоящий из электродвигателя и червячного редуктора, грузовой винт, рабочую и страхующую гайки, конечные выключатели верхнего и нижнего положений балок. Стойки попарно соединены поперечными балками лежащими на опорных шайбах рабочих гаек. На поперечных балках установлены платформы фиксируемые в зависимости от колеи автомобиля. На стойке 1 установлен шкаф аппаратный, с панелью электрооборудования, лампочкой «Сеть», кнопками управления «Вверх» и «Вниз» и с автоматическим выключателем. Стойки подъемника крепятся на раме, состоящей из двух оснований. Рама в зависимости от пожелания заказчика может быть забетонирована в пол, либо установлена на поверхности пола с возвышением над уровнем пола на 74 мм, либо на 68 мм. 

Принцип работы.
Автоматический выключатель при включении подает напряжение на электрооборудование подъемника, при этом включается лампочка «Сеть». При нажатии на кнопку «Вверх», включаются двигатели всех стоек, вращаются грузовые винты, перемещая рабочую и страхующие гайки, а через них поперечные балки с платформами вверх. Перемещение происходит до тех пор пока нажата кнопка или сработает один из конечных выключателей верхнего положения. При нажатии на кнопку «Вниз» платформы опускаются до тех пор, пока нажата кнопка или сработают все конечные выключатели нижнего положения. Таким образом в нижнем положении происходит выравнивание платформ в горизонтальной плоскости.

ТХ (таблица) (Описание) : Стандарт Для эксплуатации на улице Максимальная грузоподъемность, т 20 20 Максимальная высота подъема платформы над уровнем пола, мм 1600 1600 Минимальная высота платформы от уровня пола, мм 320 320 Установленная мощность, кВт 8,8 8,8 Напряжение питающей сети, В 380 380 Количество стоек, шт. 4 4 Количество электродвигателей, шт. 4 4 Время подъема на полную высоту, с 160 160 Расстояние между платформами, мм 800-1000 800-1000 Ширина платформы, мм 900 900 Длина платформы, мм 7000 7000 Габариты подъемника, мм 9800х4060х2100 9800х4060х2100 Упаковка: вид, кол-во мест, габариты, мм Ящик+связка 2 3100х1100х840 Ящик+связка 2 3100х1100х840 Габариты связки платформы не более (длина×ширина×высота), мм 7070×950×700 7000х950х700 Масса нетто, кг 3000 3050 Масса брутто, кг 3400 3450

ЗАКАЗ И ОПЛАТА

Свяжитесь с отделом продаж по телефону 8 (8152) 600-017, через WhatsApp , Telegram или оставьте заявку на почту info@nortorg.ru, наши менеджеры дадут исчерпывающую консультацию. После оплаты нужного товара можно забрать оборудование со склада или заказать доставку. 

Заранее ознакомьтесь с подробным описанием товара в каталоге сайта.  Если в наличии не окажется нужного товара, мы проверим все наши склады и предложим Вам максимально подходящий по характеристикам товар. 

ДОСТАВКА

- Самовывоз со склада или отправка через ТК
- Отправляем оборудование всеми известными транспортными компаниями
- БЕСПЛАТНО доставляем товар до терминалов ПЭК и Деловых Линий
- Доставка осуществяется во все регионы РФ, а также в Республику Беларусь и Казахстан
- Мы контролируем все этапы доставки 

- Производим обязательное страхование груза

УДОБСТВА ДЛЯ ВАС

Поставляем оборудование организациям, ИП и частным лицамам. 

Принимаем наличный и безналичный расчет

Работаем с НДС

Продаем в ЛИЗИНГ

Оперативный документооборот по ЭДО

ГАРАНТИЯ

Норторг берет на себя все гарантийные обязательства согласно действующему законодательству РФ и требованиям заводов изготовителей. В некоторых случаях компания оказывает дополнительную поддержку предоставляя клиентам расширенную гарантию - о чем заранее оповещает клиента. Сроки расширенной гарантии могут быть разными, в зависимости от товара.


В случае рекламационной ситуации клиент обращается в службу сервиса компании и фиксирует неисправность. Неисправное оборудование вводится в эксплуатационное состояние на месте, либо направляется к производителю. Сроки замены или ремонта рекламационного изделия при этом регулируются договором поставки (соглашением).

Данные о товарах, представленных на сайте,
не являются публичной офертой.
Подробности о технических характеристиках и составе товаров уточняйте у наших менеджеров,
осуществляющих поддержку по контактам, указанным на странице Контакты.