NORTORG

ПС-15 Подъемник стационарный, 4-х ст, г/п 15т (стандарт)

Доступность:
В наличии
931 098
Оплата и получение
Гарантия
г/п. 15 тонн. Стационарный. Шестистоечный. Электромеханический привод червячный через редуктор с концевыми выключателями нажимного действия, ограничивающими ход каретки и многоуровневой системой безопасности. Предназначен для подъёма автобусов и троллейбусов сцепок, подхват за поддомкратные площадки. По отдельному заказу комплектуется установочными рамами. Поставляется в 2 вариантах Стандарт (в помещение) и ТЗ (Для эксплуатации на улице).

УСТРОЙСТВО И ПРИНЦИП РАБОТЫ ПОДЪЕМНИКА ПС-15
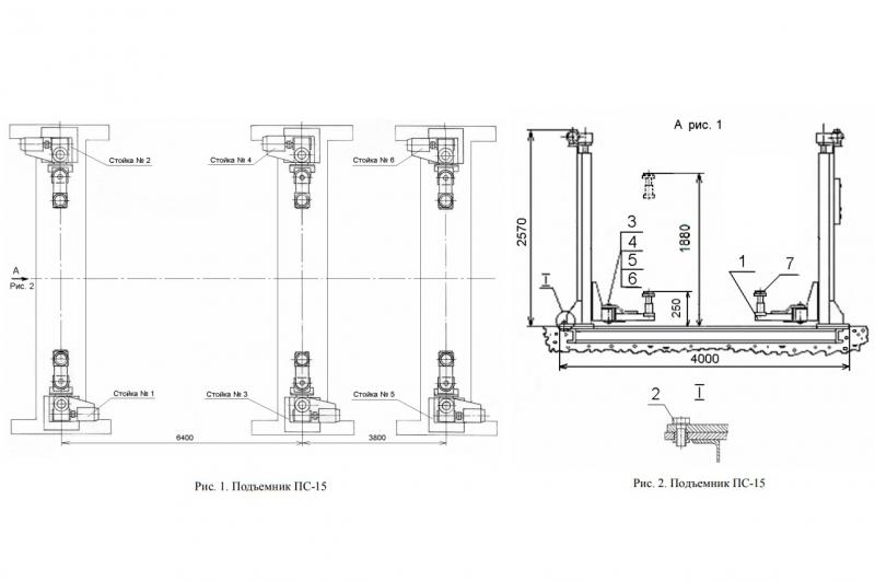
Подъемник состоит из шести стоек № 1, 2, 3, 4, 5, 6 (см. Рис.) и балок поворотных 1. Стойки № 1, 2, 3, 4, 5, 6 подъемника крепятся болтами 2 (см. выноску I на Рис.2) к раме, состоящей из трех оснований. Рама забетонирована в пол. Для установки поворотных балок на каретках стоек предназначены оси 3 и осей держатели 4, а также болты и шайбы 5 и 6 для крепления осей держателей. В состав подъемника входит комплект сменных частей 7 с подхватами и основаниями для подхватов, используемых при подъеме автобусов-сцепок. Стойка состоит из вертикальной колонны, привода подъема и каретки. На стойке № 1 установлен шкаф аппаратный. На стойках № 2, 3, 4, 5 и 6 посты управления. Колонна представляет собой сварную конструкцию. Привод подъема состоит из электродвигателя, червячного редуктора, соединительных муфт и винта. При вращении винта по нему перемещаются рабочая и страхующая гайки. На рабочую гайку через сферическую шайбу опирается каретка. На каретке закреплен упор (лыжа) для отключения перемещения каретки в крайних верхнем и нижнем положениях, воздействуя на конечные выключатели, закрепленные на колонне.

Принцип работы.
Подъем и опускание автобуса-сцепки производится с помощью подхватов, установленных на поворотных балках подъемника, подведенных под поддомкратные площадки автомобиля. Управление подъемником осуществляется со шкафа аппаратного, установленного на стойке № 1 и с постов управления, расположенных на стойках № 2, 3, 4, 5, 6
ТХ (таблица) (Описание) : Стандарт Для эксплуатации на улице Максимальная грузоподъемность, т 15 15 Максимальная высота подъема подхватов от уровня пола, мм 1880 2100 Способ подъема автомобиля за поддомкратные площадки за поддомкратные площадки Минимальная высота подхватов от уровня пола, мм 250 320 Установленная мощность, кВт 9 9 Количество стоек, шт. 6 6 Количество электродвигателей, шт. 6 6 Время подъема на полную высоту, с 160 160 Габариты подъемника, мм 10800×4250×2965 10800х4250х2930 Упаковка: вид Ящик Ящик кол-во мест 3 3 габариты, мм 3150×1100×840 3150х1100х840 Масса нетто, кг 2450 2490 Масса брутто, кг 2950 2990

ЗАКАЗ И ОПЛАТА

Свяжитесь с отделом продаж по телефону 8 (8152) 600-017, через WhatsApp , Telegram или оставьте заявку на почту info@nortorg.ru, наши менеджеры дадут исчерпывающую консультацию. После оплаты нужного товара можно забрать оборудование со склада или заказать доставку. 

Заранее ознакомьтесь с подробным описанием товара в каталоге сайта.  Если в наличии не окажется нужного товара, мы проверим все наши склады и предложим Вам максимально подходящий по характеристикам товар. 

ДОСТАВКА

- Самовывоз со склада или отправка через ТК
- Отправляем оборудование всеми известными транспортными компаниями
- БЕСПЛАТНО доставляем товар до терминалов ПЭК и Деловых Линий
- Доставка осуществяется во все регионы РФ, а также в Республику Беларусь и Казахстан
- Мы контролируем все этапы доставки 

- Производим обязательное страхование груза

УДОБСТВА ДЛЯ ВАС

Поставляем оборудование организациям, ИП и частным лицамам. 

Принимаем наличный и безналичный расчет

Работаем с НДС

Продаем в ЛИЗИНГ

Оперативный документооборот по ЭДО

ГАРАНТИЯ

Норторг берет на себя все гарантийные обязательства согласно действующему законодательству РФ и требованиям заводов изготовителей. В некоторых случаях компания оказывает дополнительную поддержку предоставляя клиентам расширенную гарантию - о чем заранее оповещает клиента. Сроки расширенной гарантии могут быть разными, в зависимости от товара.


В случае рекламационной ситуации клиент обращается в службу сервиса компании и фиксирует неисправность. Неисправное оборудование вводится в эксплуатационное состояние на месте, либо направляется к производителю. Сроки замены или ремонта рекламационного изделия при этом регулируются договором поставки (соглашением).

Данные о товарах, представленных на сайте,
не являются публичной офертой.
Подробности о технических характеристиках и составе товаров уточняйте у наших менеджеров,
осуществляющих поддержку по контактам, указанным на странице Контакты.