NORTORG

Подъемник малый грузовой г/п-50-200 кг

Доступность:
Под заказ
---
Оплата и получение
Гарантия

Размеры грузовой платформы, высота ограждения, конструкции дверей, пультов управления, количество промежуточных остановок и дополнительных блокировок, способ крепления и т.д. уточняются заказчиком при открытии заказа. (бланк Технического Задания см. ниже "Приложения")

Подъемники снабжены:

  • автоматическим тормозом;
  • ловителем,
  • концевыми выключателями верхнего и нижнего положений;

* СЕРТИФИКАТ

* Соответствие ФНиП Серия 10 Выпуск 81

 

Технические характеристики

Наименование ПМГ-1-10
Грузоподъемность, кг до 300
Высота подъема, м до 16
Площадь платформы, м2 до 1,2
Электропитание, В 220
Привод, электротельфер WRH-1320

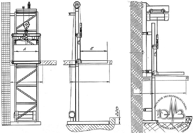
Грузовой строительный подъемник наклонный

Подъемник грузовой наклонный используется для механизации перемещения груза под углом к горизонту 20-80 градусов на площадке длиной, не превышающей 18 метров.

Обычно такой подъемник устанавливают на строительных площадках, в складских помещениях и подвалах магазинов. Грузовой наклонный подъемник состоит из металлической наклонной мачты и электропривода.

Грузы на наклонном грузовом подъемнике размещают на горизонтальной платформе. Данная модель является разновидностью подъемника консольного, хотя его мачта расположена под наклоном.

Подобный механизм очень удобен для того, чтобы переместить груз через служебное окно из подвала или в подвал. Такая конструкция минимизирует строительные работы по снесению наружных стен или устройству в стенах специальных проемов. Использование наклонного грузового подъемника будет наиболее правильным решением при организации в подвальном помещении складской работы.

Для того, чтобы свести к минимуму усилия при перемещении тяжелого груза на склад из кузова автомобиля, подъемник поднимают на высоту грузового пандуса.

ЗАКАЗ И ОПЛАТА

Свяжитесь с отделом продаж по телефону 8 (8152) 600-017, через WhatsApp , Telegram или оставьте заявку на почту info@nortorg.ru, наши менеджеры дадут исчерпывающую консультацию. После оплаты нужного товара можно забрать оборудование со склада или заказать доставку. 

Заранее ознакомьтесь с подробным описанием товара в каталоге сайта.  Если в наличии не окажется нужного товара, мы проверим все наши склады и предложим Вам максимально подходящий по характеристикам товар. 

ДОСТАВКА

- Самовывоз со склада или отправка через ТК
- Отправляем оборудование всеми известными транспортными компаниями
- БЕСПЛАТНО доставляем товар до терминалов ПЭК и Деловых Линий
- Доставка осуществяется во все регионы РФ, а также в Республику Беларусь и Казахстан
- Мы контролируем все этапы доставки 

- Производим обязательное страхование груза

УДОБСТВА ДЛЯ ВАС

Поставляем оборудование организациям, ИП и частным лицамам. 

Принимаем наличный и безналичный расчет

Работаем с НДС

Продаем в ЛИЗИНГ

Оперативный документооборот по ЭДО

ГАРАНТИЯ

Норторг берет на себя все гарантийные обязательства согласно действующему законодательству РФ и требованиям заводов изготовителей. В некоторых случаях компания оказывает дополнительную поддержку предоставляя клиентам расширенную гарантию - о чем заранее оповещает клиента. Сроки расширенной гарантии могут быть разными, в зависимости от товара.


В случае рекламационной ситуации клиент обращается в службу сервиса компании и фиксирует неисправность. Неисправное оборудование вводится в эксплуатационное состояние на месте, либо направляется к производителю. Сроки замены или ремонта рекламационного изделия при этом регулируются договором поставки (соглашением).

Данные о товарах, представленных на сайте,
не являются публичной офертой.
Подробности о технических характеристиках и составе товаров уточняйте у наших менеджеров,
осуществляющих поддержку по контактам, указанным на странице Контакты.